
3 Bedrooms / 1 Bathrooms / 1 Reception
21 photos
BrochureBell Watson Estate Agents are proud to market for sale this well maintained THREE BED detached bungalow situated in a quiet cul-de-sac location. The bungalow briefly comprises a central hallway, spacious and bright lounge, a dining kitchen, conservatory come utility room, three bedrooms and a bathroom. Outside there is ample off road parking, a detached garage and front and rear gardens. Oil central heating. Must be viewed!
LOCATION
North Kelsey is a sought after village location benefiting from local amenities such as a post office and a public house. The village has its own primary school and is within easy travelling distance from the market town of Brigg and access to the motorway system and the A15 to Lincoln. Catchment area for Caistor Grammar School.
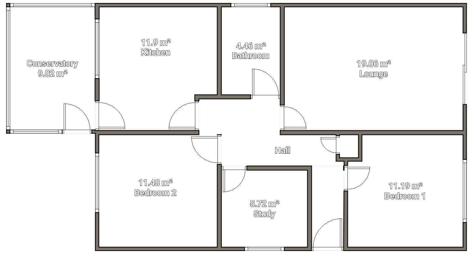
ACCOMMODATION
Arranged over the ground floor.
HALLWAY
Enter the property via a composite door located to the side of the bungalow into a spacious hallway having two pendant lights and loft access to the ceiling with the loft having lighting and a Slingsby pull down ladder for easy access. There is a central heating radiator, carpeted flooring and a fully shelved built in airing cupboard housing the hot water tank.
LOUNGE 5.25m (17' 3") x 3.64m (11' 11")
Situated to the front of the bungalow enjoying uPVC double glazed sliding doors to the South facing front garden. There is an open fire with slate surround and back boiler, a pendant light to the ceiling, a double central heating radiator and carpeted flooring.
KITCHEN 3.62m (11' 11") x 3.47m (11' 5")
A country shaker style kitchen provides a range of wall and base units fitted with butcher block effect worktops having tiled splash backs and incorporates a composite sink with chrome mixer tap and a built in extractor hood. Space for a free standing electric cooker, an under counter recess for a fridge as well as space and plumbing for a dishwasher. There is a uPVC double glazed window to the rear aspect, a light fitting to the ceiling, a central heating radiator and wood effect cushion flooring. The floor standing oil fired boiler is located here.
CONSERVATORY/UTILITY ROOM 3.71m (12' 2") x 2.48m (8' 2")
A uPVC double glazed conservatory with thermal glazing roofing is fitted with a base unit having a recess and plumbing for the washing machine, and space for a freezer, a central heating radiator, wall lighting, cushion flooring and a uPVC external door to the rear garden.
BEDROOM ONE 3.29m (10' 10") x 3.39m (11' 1")
Located to the front of the property, having a triple glazed uPVC window, a pendant light to the ceiling, a central heating radiator and carpeted flooring.
BEDROOM TWO 3.30m (10' 10") x 2.82m (9' 3")
Providing a large built in wardrobe having a uPVC double glazed window to the rear aspect, a pendant light to the ceiling, a central heating radiator and carpeted flooring.
BEDROOM THREE 2.30m (7' 7") x 2.36m (7' 9") floor space
Providing a range of built in wardrobes fitted with sliding doors, a pendant light to the ceiling, a uPVC double glazed window to the side aspect, a central heating radiator and carpeted flooring.
BATHROOM 2.56m (8' 5") x 1.73m (5' 8")
A white three piece bathroom suite provides a bath with mains shower and tiled surround, a wall mounted wash basin with storage under and a low flush WC. There is a uPVC obscure double glazed window to the side aspect, a light fitting to the ceiling, a central heating radiator and cushion flooring.
OUTSIDE
The property enjoys front and rear garden with a pathway running the perimeter. The front garden is south facing, mainly laid to lawn having multiple mature shrubs and bushes. The long driveway provides ample off road parking and leads to the detached sectional garage and rear garden. The garage has an up and over door, lighting, power and a timber framed window and side access door. The private and fully enclosed, well established rear garden is also laid to lawn with a flagged patio area.
SERVICES (not tested)
Mains electric, water and drainage are all understood to be connected to the property with oil fired central heating. Fibre Broadband Connection and sufficient power points throughout. There is external sensor lighting to the front door and garage door and an outside cold water tap.
COUNCIL TAX
The Council Tax Band for this property is Band B as confirmed by West Lindsey District.
Reference: B2601
Disclaimer
These particulars are intended to give a fair description of the property but their accuracy cannot be guaranteed, and they do not constitute an offer of contract. Intending purchasers/tenants must rely on their own inspection of the property. None of the above appliances/services have been tested by ourselves. We recommend purchasers arrange for a qualified person to check all appliances/services before legal commitment.
Get a free valuation on your home now!
Value My Home